Egret Solar on PV-kinnituslahenduste spetsialiseerunud pakkuja, siin tutvustatud päikesepaneelide paigaldatav katuseklamber on saadaval hulgitellimuste ja muude suurte hankevajaduste jaoks. Katuseklamber on spetsiaalselt ette nähtud trapetsikujulise lainepapist teraskatuse paigaldamiseks ja kasutab mittepuuritavat, mis kinnitatakse otse metallpaneelide harjadele. Eelarvepiirangutega töötavate fotoelektriliste projektide puhul minimeerib selle katuseklambri valimine kasutamata katusevarusid, maksimeerides seeläbi katuseala paigaldatud võimsust. Valmistatud ülitugevast roostevabast terasest liivapritsi pinnaviimistlusega ja ühendatud EPDM veekindla kummipadjaga.
Lainepapist teraskatuse päikeseklambri põhifunktsioon on PV-moodulite turvaline kinnitamine värviliste terasest katuseprofiilide harjade külge. Eelpuurimine pole vajalik, võite lihtsalt elektrilise kruvikeerajaga keerata isekeermestavad kruvid kinnitamiseks otse klambrisse. Meie päikesepatarei kinnitusklambrid on varustatud EPDM-iga, mis tagab katuse hüdroisolatsioonikihi säilimise. Katuseklamber on mõeldud horisontaalse moodulpaigutuse jaoks, kui vajate vertikaalset moodulpaigutust, siis Egret Solar pakub selleks ka päikesepatareile paigaldatavat katuseklambrit. Ühildub trapetsikujulise värvilise teraskatusega, see klamber on kriitilise tähtsusega komponent kaubanduslikes ja tööstuslikes PV-elektrijaamades.

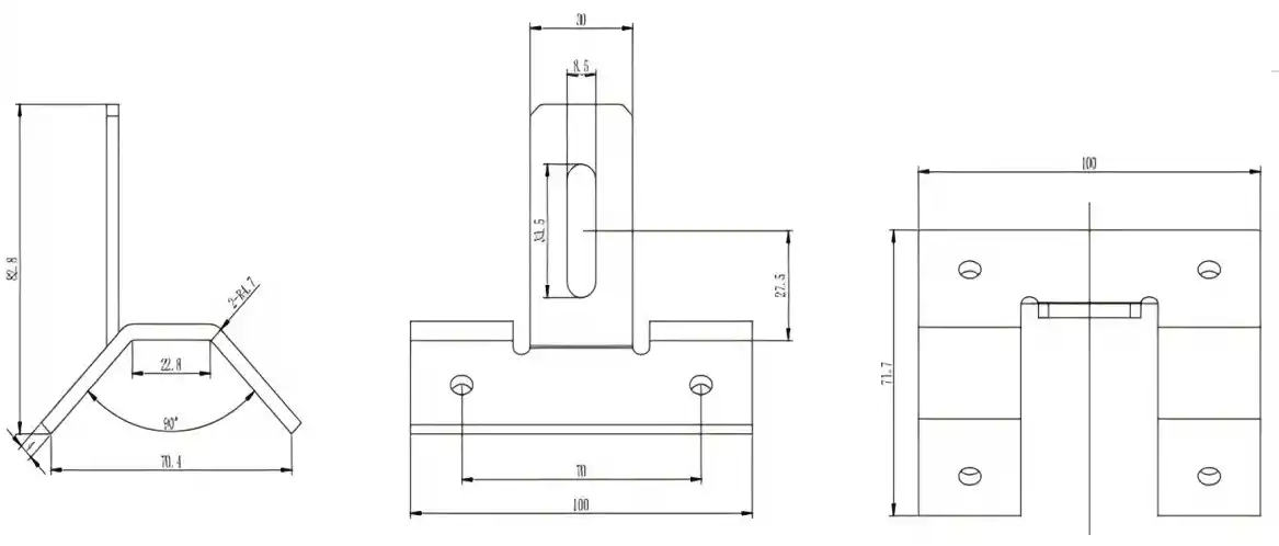
Meie päikesepatarei kinnitusklamber on valmistatud roostevabast terasest ja liivapritsi pinnaviimistlusega. See pakub suurepärast tugevust ja korrosioonikindlust. See EPDM kummipatjadega, mis haakub tihedalt katusekivi pinnaga, tagab katusekivile veekindla tiheduse. Meie standardsete katuseklambrite pikkus on 100 mm, alloleval pildil on üksikasjalikud mõõtmed. Samuti saame kohandada mõõtmeid vastavalt teie katuse konkreetsele kiviprofiilile.
| Toote nimi | Päikeseenergia trapetsikujuline katuseklamber |
| Materjal | 304 roostevaba teras/EPDM |
| Pinnatöötlus | Liivaprits |
| Pikkus | 100 mm, kohandatud suurus |
| Paigaldussuund | Horisontaalne |

Päikeseenergia jaoks mõeldud trapetsikujuline katuseklamber on modulaarse montaažikonstruktsiooniga, mis võimaldab sellel koosneda Egret Solarist47 mm siinid, siiniühendus ja muud tarvikud, et moodustada terviklik päikeseenergia metallist katusekinnitussüsteem. Trapetsikujuline lainepapist terasest katuseklamber kinnitatakse 47 mm siini külge M8 poldi jaliugmutter, samas kui keskmine klamber ja otsaklamber on asetatud siinile, et päikesemoodulid kindlalt kinnitada. Arvutame otsaklambrite kõrguse ja poltide pikkuse vastavalt teie PV-moodulite mõõtmetele.

PV-moodulite külgmise paigutuse plaani alusel asetage No-Drill Solar Roof Clamps vastu värviliste terasest katuseplekkide harju. Järgmine samm on lihtsalt kruvide pingutamiseks kasutada elektrilist kruvikeerajat, katuseklambri paigaldamine võtab vaid kaks minutit. Pärast seda libistage mutter siini sisse ja pingutage M8 poldid. Asetage oma moodulid siinidele, seejärel kasutage nende kinnitamiseks keskmisi ja otsaklambreid. Lõpuks veenduge, et installimise lõpuleviimiseks ei oleks lõtvumist.

Metallkatuste PV klambrite standardsed karbi mõõtmed on 540 x 220 x 220 mm. Standardkonfiguratsioonis on 60 komplekti karbi kohta ja kruvid on eraldi kottides, et vältida kadumist ning kaitsta transpordi ajal kriimustuste ja niiskuse eest.


K1: Mis tüüpi värvilised terasest katuseplekid sobivad katuseklambriga?
V: See ühildub tavaliste trapetsikujuliste värviliste terasest katuselehtedega. Spetsiaalsete spetsifikatsioonidega lehtede jaoks saame pakkuda kohandatud klambreid.
K2: Kas katuseklambri kinnitusviis kahjustab värvilise teraskatuse hüdroisolatsiooni?
V: Ei, ei ole. EPDM hüdroisolatsioonitihend sobib tihedalt vastu katusepinda, välistades tõhusalt katuse läbiviigutest põhjustatud veelekke ohu.
Q3: kas saate suurte tellimuste jaoks teha originaalseadmete tootjate / eramärgistust?
V: Jah, me saame teha hulgitellimuste jaoks originaalseadmete tootjaid. Saame muuta selliseid asju nagu tootemärgised, värvid ja muud üksikasjad.
K4: Kas ma vajan selle klambri kinnitamiseks professionaali? Kas teil on juhiseid, kuidas seda teha?
V: Te ei vaja selle sisestamiseks professionaali. Aitame teil seda sisestada, pakkudes teile videoid või tehnilist kaugabi.
Päikeseenergia katuseklamber siiniga
Trapetsoosid metallist päikesekatuse klamber
Vertikaalne lukustusseade
Päikeseenergiaga paigaldatav katuseklamber metallkatuse jaoks
Mitteläbiv päikeseenergiaga seisev õmblusega metallist katuseklamber
Mitteläbiv katusekinnitusega päikesepaneelid seisva õmblusega metallist katuseklamber